

產品名稱:VSSJAFG型單法蘭松套傳力接頭
傳力接頭是泵、閥門等設備與管道連接的新產品,通過全螺栓把它們連接起來,使其成為一個整體,并有一定的位移量,這樣就可以在安裝維修時,根據現場安裝尺寸進行調整,在工作時,可以把軸向推力傳還至整 個管道。這樣不僅提高工作效率,而切對泵、閥們等設備起到一定保護作用。
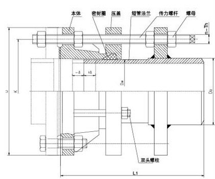
傳力接頭分類有:單發蘭傳力接頭、雙法蘭傳力接頭、可拆式雙法蘭傳力接頭。
傳力接頭材質有:Q235碳鋼、不銹鋼、鑄鋼、球墨鑄鐵等。不同的用途選用不同的材質和型號。
VSSJAFG型單法蘭松套傳力接頭適用于輸送海水、淡水、冷熱水、飲用水、生活污水、原油、燃油、潤滑油、成品油、空氣、煤氣、溫度不高于250度的蒸汽和顆粒粉狀等介質。
VSSJAFG型單法蘭松套傳力接頭優點:
1.安裝簡單方便、方便閥門安裝、可承受管線的軸向拉力。
2.該產品采用金屬鑄造或組成,松套部位選用梯形橡膠密封圈,在壓蓋和螺栓的作用下。
3.利用橡膠壓縮彈性變形原理。迫使密封圈變形于接頭本體伸縮管外壁之間進行靜密封。
4.金屬和密封圈嚴格按使用性能及用戶要求選用。材質外部涂裝度防腐漆料,各部連接螺栓為度碳鋼或不銹鋼制作。因為本體與伸縮管之間有一定間隙,使它具有一定的軸向和徑向位移。
5.在管道中能的補償和管道和盲板推力,又能便于水泵,閥門的安裝維修更換,實為管道安裝運行業中理想的配套產品。
VSSJAFG型單法蘭松套傳力接頭安裝簡要說明:
VSSJAFG型單法蘭松套傳力接頭適用于一面與法蘭連接,一面與管道。安裝時調節產品兩端與管道或法蘭的安裝長度,安裝和完畢后,對角依次均勻擰緊壓蓋螺栓,使其成為一個整體,并有一定的位移量,方便安裝維修,可根據現場尺寸進行調整。在工作時可以把軸向推力傳遞至整個管道。
技術參數:
| 序號 | 名稱 | 數量 | 材料 |
| 1 |
本體
|
1
|
QT400-15、Q235A、ZG230-450、20
|
| 2 |
密封圈
|
1
|
NBR
|
| 3 |
壓蓋
|
1
|
QT400-15、Q235A、ZG230-450、20
|
| 4 |
短管法蘭
|
1
|
Q235A、20、16Mn
|
| 5 |
螺柱
|
n
|
Q235A、35、1Cr18Ni9Ti
|
| 6 |
螺母
|
5n
|
Q235A、20、1Cr18Ni9Ti
|
|
公稱通徑DN |
管子外徑 |
外形尺寸 |
法 蘭 連 接 尺 寸 |
|||||||||
|
L |
△L |
0.6MPa |
1.0MPa |
|||||||||
|
Dw
|
|
D |
D1 |
n-Th |
b |
D |
D1 |
n-Th |
b |
|||
|
65
|
76 |
76 |
400 |
40 |
160
|
130
|
4-M12
|
16
|
185 |
145 |
4-M16
|
20
|
|
80
|
89
|
89
|
190
|
150
|
4-M16
|
18
|
200 |
160 |
8-M16
|
22
|
||
|
100
|
114
|
114
|
210
|
170
|
220 |
180 |
24
|
|||||
|
125
|
140
|
140
|
240
|
200
|
8-M16
|
20
|
250 |
210 |
26
|
|||
|
150
|
168
|
168
|
265
|
225
|
285 |
240 |
8-M20
|
|||||
|
200
|
219
|
219
|
320
|
280
|
22
|
340 |
295 |
28
|
||||
|
250
|
273
|
273
|
375
|
335
|
12-M16
|
24
|
395 |
350 |
12-M20
|
|||
|
300
|
325
|
325
|
420 |
50 |
440
|
395
|
12-M20
|
24
|
445 |
400 |
12-M20
|
28
|
|
350
|
377
|
377
|
490
|
445
|
26
|
505 |
460 |
16-M20
|
30
|
|||
|
400
|
426
|
426
|
540
|
495
|
16-M20
|
28
|
565 |
515 |
16-M24
|
32
|
||
|
450
|
480
|
480
|
595
|
550
|
615 |
565 |
20-M24
|
32
|
||||
|
500
|
530
|
530
|
645
|
600
|
20-M20
|
30
|
670 |
620 |
34
|
|||
|
600
|
630
|
630
|
440 |
755
|
705
|
20-M24
|
780 |
725 |
20-M27
|
36
|
||
|
700
|
720
|
720
|
860
|
810
|
24-M24
|
32
|
895 |
840 |
24-M27
|
40
|
||
|
800
|
820
|
826
|
600 |
60 |
975
|
920
|
24-M27
|
34
|
1015 |
950 |
24-M30
|
44
|
|
900
|
920
|
926
|
1075
|
1020
|
24-M27
|
36
|
1115 |
1050 |
28-M30
|
46
|
||
|
1000
|
1020
|
1026
|
1175
|
1120
|
28-M27
|
1230 |
1160 |
28-M33
|
50
|
|||
|
1200
|
1220
|
1226
|
620 |
1405
|
1340
|
32-M30
|
40
|
1455 |
1380 |
32-M36
|
56
|
|
|
1400
|
1420
|
1428
|
1630
|
1560
|
36-M33
|
44
|
1675 |
1590 |
36-M39
|
62
|
||
|
1600
|
1620
|
1628
|
630 |
1830
|
1760
|
40-M33
|
48
|
1915 |
1820 |
40-M4
|
68
|
|
|
1800
|
1820
|
1828
|
2045
|
1970
|
44-M36
|
50
|
2115 |
2020 |
44-M45
|
70
|
||
|
2000
|
2020
|
2030
|
650 |
2265
|
2180
|
48-M39
|
54
|
2325 |
2230 |
48-M45
|
74
|
|
|
2200
|
2220
|
2230
|
2475
|
2390
|
52-M39
|
60
|
2550 |
2440 |
52-M52
|
80
|
||
|
2400
|
2420
|
2430
|
2685
|
2600
|
56-M39
|
62
|
2760 |
2650 |
56-M52
|
82
|
||
|
2600
|
2620
|
2630
|
750 |
80 |
2905
|
2810
|
60-M45
|
64
|
2960 |
2850 |
60-M52
|
88
|
|
2800
|
2820
|
2830
|
3115
|
3020
|
64-M45
|
68
|
3480 |
3070 |
64-M52
|
94
|
||
|
3000
|
3020
|
3030
|
3315
|
3220
|
68-M45
|
70
|
3405 |
3290 |
68-M56
|
|
||
